Vermarktung des Baugebietes "Vellmar-Nord" gestartet
Veröffentlicht am:
26.10.2023
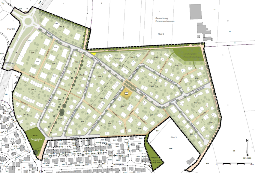
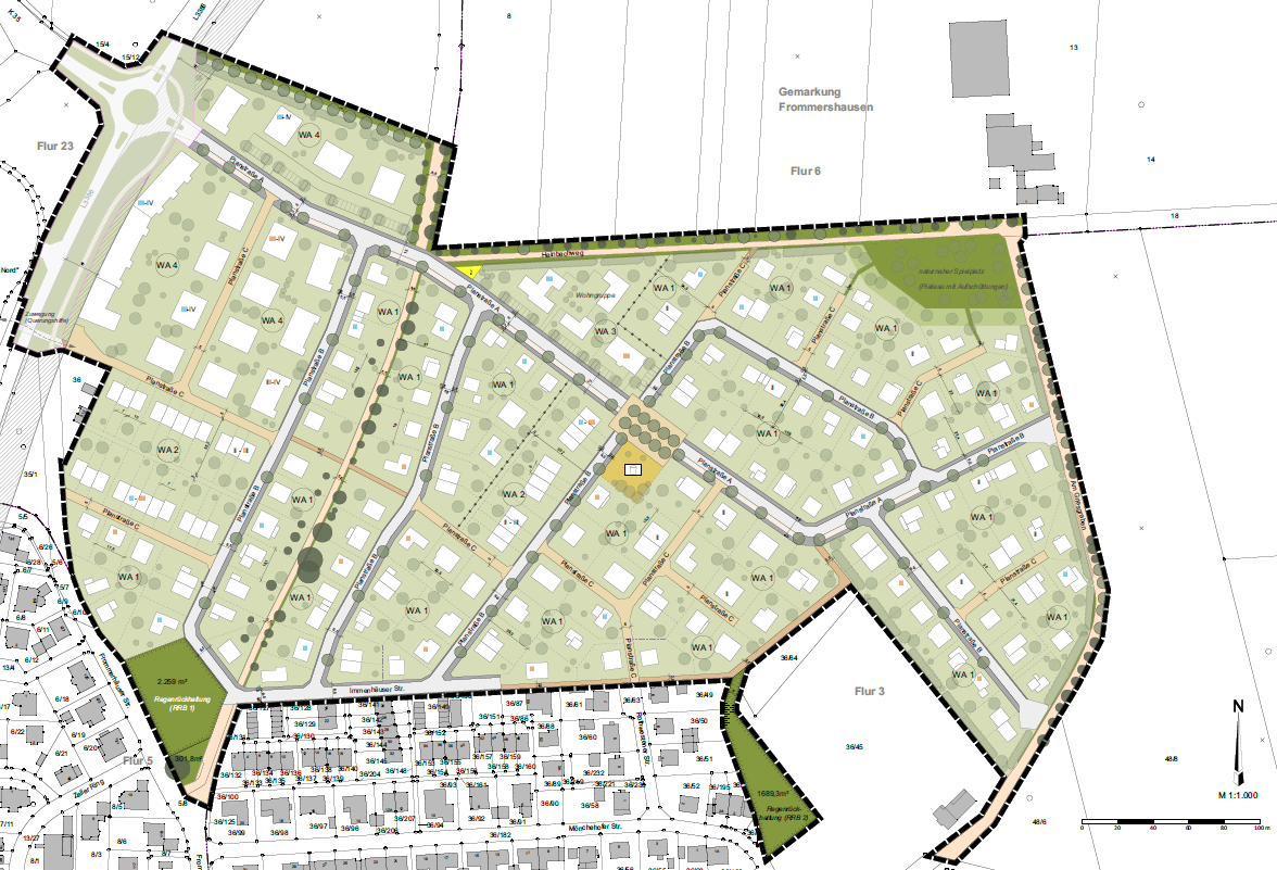
Übersichtsplan des Neubaugebietes "Vellmar-Nord" - Grundstücksbewerbungen für das erste Losverfahren am 15. November 2023 sind noch bis zum 07. November 2023 möglich!
Viele weitere Informationen zum Baugebiet und Grundstücksbewerbung erhalten Sie hier : bitte hier klicken!
